
设计愿景 ✦
URBAN XANADU · SHAOXING
每一个项目的背后都有开发者和设计师的价值观和美好愿景。而对于湖珀隐秀府项目来说,我们首先感受到的是项目所处基地地貌的与众不同,以及这份不同所带来的震撼。
项目虽然地处都市建成区域,但却是一大片极具特征的自然湿地,周边几乎每个地块都被水岸环绕。追溯历史,这里自古就是一片平原沼泽,人类已经在这样一片几乎没有改变过的自然地貌中繁衍生息了将近万年,毫无疑问这一点就是项目的核心资源。

现今的人类文明已不只可以在这片古老的土地上建起高楼大厦,继续居住生活,还应该可以保育和修复这里的生态环境,守护这片都市里的极致静谧,实现在自然中的诗意栖居。我们相信这将成为项目建设的最大价值。
规划设计的所有思路也都是围绕这一核心价值展开的。
外揽湖景,内造园景
总体规划
项目地块内须建设一座幼儿园,它的位置和形状其实也就决定了住宅小区的边界形态。从项目整体品质角度出发,我们高度重视幼儿园的选位,将其放在基地的西南角,两边临水,紧贴水岸绿带。
我们希望未来业主的小朋友们每天上下学可以在水岸林间穿行,感受生态环境的美好与重要,接触到各种动植物,从而自然而然地完成自然教育,这一点对于都市中的孩子们是尤其难得的。

△ 手绘草图:多方案比选

△ 鸟瞰图
设计坚决放弃拉高拍低的规划格局,尽量做足建筑物的限高,以减少建筑密度和住宅塔楼的栋数,把更加多空间让度出来,还给自然景观。不在局部小尺度上拘泥天际线的变化,更加看重小区内外空间的互相渗透和延续。

我们主张对外延揽湖景,对内营造园景,让每一栋楼都得到充分的景观资源。
具体来说小区楼栋采用板点结合,在小区沿外圈采用大围合布局,在西侧与南侧临水的方向,以及内部的腹地缀以点式塔楼,并且底层进行架空,使公共空间和景观自由渗透,每栋楼的每一户都可以平等均好地亲近自然,自由漫步。
繁华都市中的极致静谧与优雅
示范区设计
整个示范区,依托得天独厚的自然环境资源,打造都市中心的栖居谧境。在空间氛围和调性上延续提炼了万科隐秀系的内涵,即“摩登,静谧,自然,精奢。”

△ 示范区各阶段草图

△ 示范区平面
所谓的示范区,对湖珀隐秀府项目来说,实际上就是一个百分百的实景体验区。设计围绕着项目最核心的价值“于自然中诗意栖居”,整个示范区空间不是简单地一道大门或者一个入口广场,而是以“展,收,放”的节奏变化,组织起一个三进的复合空间序列。

△ 示范区空间节奏控制

在这个空间序列中,以无雨归家动线为线索,串联起了智能门禁,快递站点,景观健身房,水岸业主客厅等产品力提升功能。

△ 示范区空间轴线关系


更加重要的是,所有这些功能空间都比较自然地融合在环境中,可以说从小区外的城市生态景观到小区内部景观,自然过渡,无缝衔接,一个接一个随着归家动线优雅的展开。这才是一个融入自然生态环境的小区所应当有的打开方式。
整个示范区的动线既满足售楼状态下的展示效果,也充分考虑未来交付使用状态下的实际使用功能。

△ 示范期功能及参观流线

△ 交付期功能及归家流线
(设计概念示意,非最终交付标准)


△ 销售中心入口
展| 舒展延伸的入口广场
社区入口是住区对外最重要的名片,所以作为展示整个项目的区位首选就是和主入口紧密结合。那么主入口选在哪里?主入口形成什么样的氛围?如何体现项目的核心价值点?


最后确定的方案是将小区主入口放在地块的西侧,正对湿地景观绿带,用难得的自然生态环境来形成高端大宅的“影墙照壁”。

△ 主入口门回望雕塑小院,静雅质素,提升调性

△ 由闸机透视主入口门廊
收| 静谧修长的水院过渡空间
“如果能够把花草、树木、流水、光和风根据人们自己的意愿从自然界中提炼出来,那么人间就接近于天堂了。” ——安藤忠雄


△ 由入口水院空间“院围且透”引人入胜
绍兴因河而建,河流是构成绍兴城市的骨架。示范区设计从绍兴水乡特性出发,在大围合式的庭院空间中,穿桥而过的水院串联起多个生动的生活场景,营造临水而栖的自然与诗意。


△ 利用高差,形成叠水循环,悦耳水音
放| 精奢开阔的后院景观
从入口广场,经过风雨长廊到达核心景观庭院,“院围且透”的三进空间带来丰富的视觉感受,别具韵味。临水而坐,户外的美景尽收眼底,也记录着生活的美好时光。


△ 核心景观庭院,自然湿地,精奢品质

△ 回望销售大厅
考虑到住宅均以垂直线条比较突出的高层塔楼为主,而在塔楼间穿插展开的示范区则是一层铺开的体量,整个示范区建筑的形式语言以强化舒展的水平线条为主。


△ 销售中心水吧©三棱镜

△ 健身房©三棱镜
酒店级高定大平层
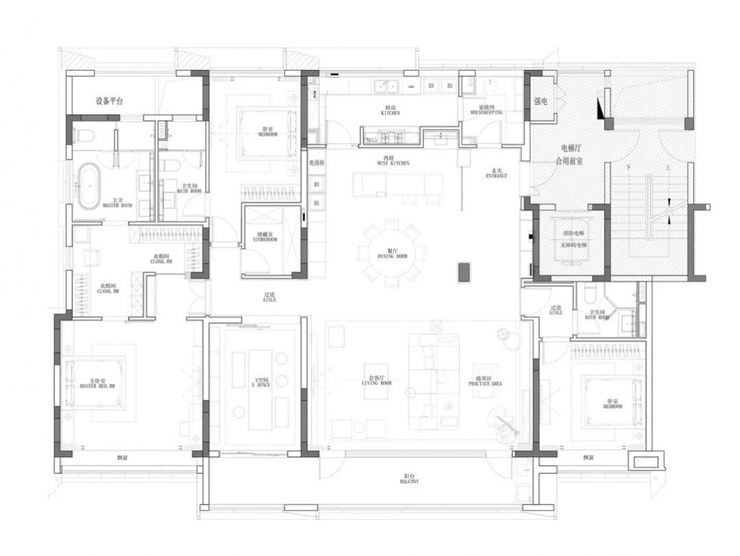
户型设计
如同万科隐秀系的开篇之作杭州翠隐秀园一样,湖珀隐秀府的住宅产品为全高层平层公寓,主力面积在143到260平方米。区别于一般的楼盘,项目户型设计并未一味地拉大面宽,以开间数取胜。而是以规划先行,通过逐栋分析楼栋的景观资源,充分挖掘边厅观景的优势来实现产品的独特价值。



△ 装修展示馆实景,非最终交付标准 ©绍兴万科
正是边厅户型的集约,才成就了260㎡楼王的“王炸”效果。接近2:1的面宽进深比, 20米的超大面宽,相当于将三层排屋产品摊平放在一层,完完全全的“空中别墅”效果。大平层所带来的不仅仅是大面宽, L D K B一体化公区,洄游式动线,卧室区的私域空间,主卧室的小家化等等,不一而足。

△ 户型平面:260㎡
(设计概念示意,非最终交付标准)

△ 户型平面:198㎡
(设计概念示意,非最终交付标准)
所有这一切都是从客户生活需求出发,以丰富的生活场景应用,满足全部家庭成员的不同需求,力求创造出新一代的高品质平层公寓户型。
黄金斜切的隐秀系现代美学
立面设计
湖珀隐秀府在住宅立面风格上秉承了万科古翠隐秀的建筑美学特征,并且进一步加以提炼丰富,结合项目的地域实际加以发展应用。

△ 手绘过程稿,非最终交付标准

△ 设计概念示意,非最终交付标准
建筑立面首先打破当下高端公寓主流的所谓对称式仪式感,以非对称的立面构图形成现代风格立面的底子。通过建筑表皮的细腻刻画,以铝板幕墙斜切的独特细部手法形成隐秀系的标志性符号,并且将这一符号应用到地上地下入户大堂等部位。

△ 地上大堂设计概念示意,非最终交付标准

△ 地下大堂设计概念示意,非最终交付标准
立面设计中还结合绍兴当地阳台封闭的需求,引入大面积高透玻璃和轻盈的铝型材线条,以窗墙体系的构造实现了类幕墙的视觉效果,进一步丰富了隐秀系立面的层次与内涵。
精细化设计与管控
设计质量控制
精细化设计是实现方案高还原度的基础,设计通过尺度上的精确拿捏,功能的反复排演,以及现场设计质量的控制,最终将城市自然栖居的现代生活充分呈现。





风雨廊采用了单边悬挑的设计,作为主体建筑的业主客厅则充分利用了钢结构的特性,通过运用大跨度井格梁以及变截面悬臂梁,结合幕墙的细部节点,最终实现了轻盈舒展的效果。

△ 现场巡检
设计图纸

△ 总平面

△ 示范区立面
项目概况
—
项目地址:浙江省绍兴市凤林西路
建筑面积:129018 平方米(示范区用地面积:8600㎡)
开发单位:绍兴元昊置业有限公司
甲方设计团队(万科):方海峰、杜恒、吴佳璠、张碧君、卞弢、方勰凌、章哲超
甲方设计团队(中粮):高海超、李孟海、齐雯雯、郑芳菲
建筑设计:上海中房建筑设计有限公司
设计团队:陆臻、宋相如、卞晖、黄诗娴、孙翔、封陈杰、单海军、王晓东、陈钰茜、王汝露
施工图设计:华汇工程设计集团股份有限公司
景观公司:上海水石景观环境设计有限公司
室内设计:集艾室内设计(上海)有限公司
建筑摄影:吴志盛(除标注外)
文章来源:中房建筑
Copyright @ 2020 江苏城乡空间规划设计研究院
版权所有苏ICP备2020059968号-1号